Honda Accord: Circuit Diagram


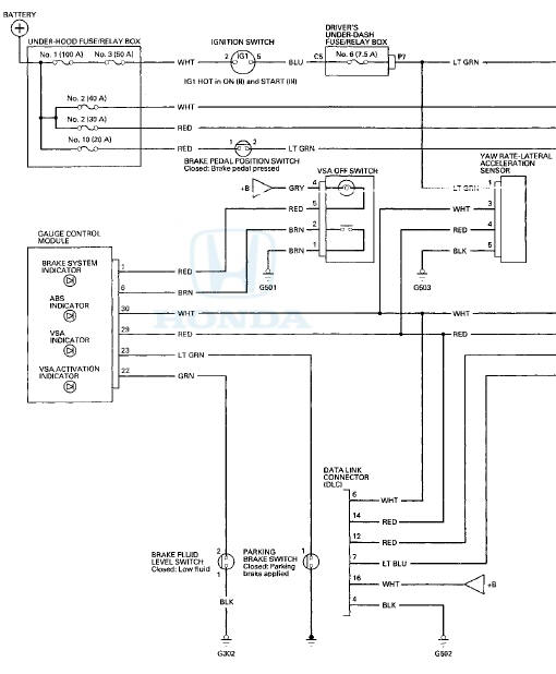
DRIVER'S UNDER-DASH FUSE/RELAY BOX CONNECTOR P (20P)

BRAKE PEDAL POSITION SWITCH 4P CONNECTOR

GAUGE CONTROL MODULE 32P CONNECTOR

VSA OFF SWITCH BP CONNECTOR

YAW RATE-LATERAL ACCELERATION SENSOR" 5P CONNECTOR

BRAKE FLUID 'LEVEL SWITCH 2P CONNECTOR'

PARKING BRAKE SWITCH 1P CONNECTOR

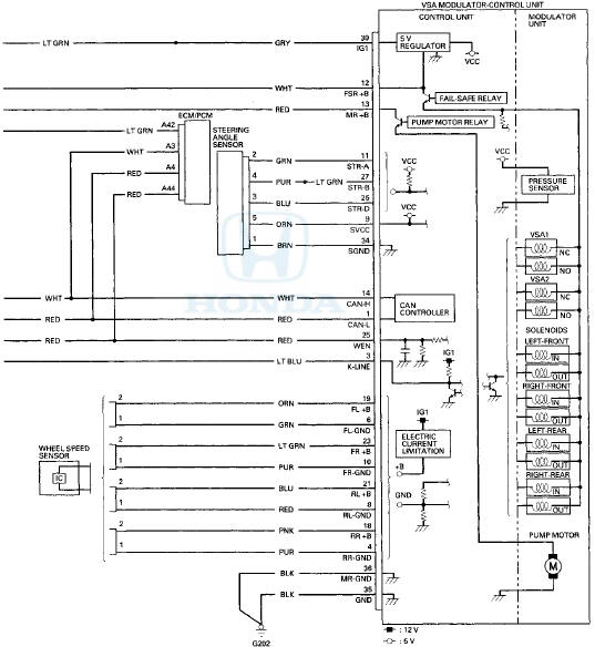
STEERING ANGLE SENSOR 5P CONNECTOR

WHEEL SPEED SENSOR 2P CONNECTOR

VSA MODULATOR-CONTROL UNIT 36P CONNECTOR

Wire side of female terminals
ECM/PCM CONNECTOR A (49P)

DATA LINK CONNECTOR (DLC)

Terminal side of female terminals
System Description
VSA Modulator-Control Unit Inputs and Outputs for 36P Connector (Connector
Disconnected
Wire side of female terminals.
System Outline
This system i s composed of the VSA modulator-control u ...
DTC Troubleshooting
DTC 11-13: Right-front Wheel Speed Sensor
Circuit Malfunction
DTC 13-13; Left-front Wheel Speed Sensor
Circuit Malfunction
DTC 15-13: Right-rear Wheel Speed Sensor
Circuit Malfunction
DTC 17-13: ...
See also:
Ambient Light Replacement
With moonroof
NOTE: The ambient light is built into the moonroof
switch.
1. Remove the front individual map lights (see page
22-258).
2. Disconnect the moonroof switch 12P connector (A)
and ...
To Play an iPod
This audio system can select and
play the audio files on the iPod with
the same controls used for the disc
player. To play an iPod, connect it to
the USB adapter cable in the console
compart ...
Clutch Pedal Position Switch
Test
M/T model
1. Disconnect the clutch pedal position switch 3P
connector (A).
2. Remove the clutch pedal position switch (B).
3. Check for continuity between the terminals according
to the table ...